工业增长的繁荣枢纽
IDEAL BUSINESS HUB
筑造卓越工业未来
欢迎来到 IDEAL BUSINESS HUB,⼯业卓越与创新的标杆之地 。
IDEAL BUSINESS HUB 位于槟城科技园@柏淡的核⼼地段 ,提供与领域翘楚携⼿合作的⽆限机遇,让您的企业展翅⾼⻜ 。每⼀处细节皆经过精⼼设计,为企业打造理想⼯作环境,构建助⼒企业攀登新⾼峰的卓越⽣态系统。
理想商机首选之地
跃升企业价值,迈向卓越新境
IDEAL BUSINESS HUB 共88个单位,设计包括独⽴式⼚房 、半独⽴⼚房和半独⽴⽥字型⼚房,多样化且灵活的空间布局,让企业可以随着市场需求不断改进与调整。设计兼顾功能与效率,并融⼊可持续的环保实践与绿⾊科技,为园区增添持久吸引⼒。
为您的业务拓展量身定制
IDEAL BUSINESS HUB 采用创新灵活空间概念,满足不同行业多样化营运需求,确保运作效率最佳化。 配备充足的工业级用水、供电与天然气系统,从基础条件到空间配置,全方位提升企业生产力与运营效能。
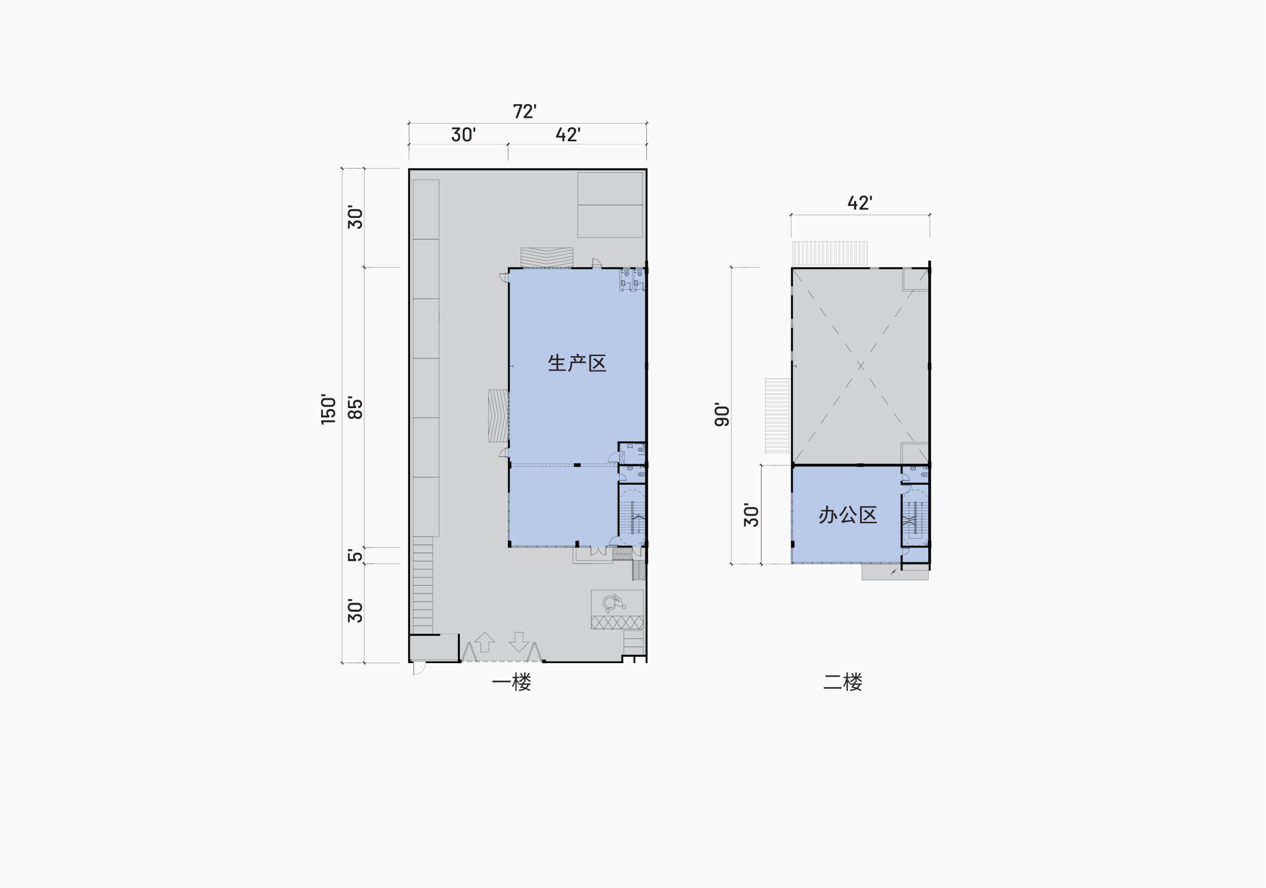
独立式厂房
建筑面积 3,550-10,402 sqft
半独立厂房
42’X 90′
建筑面积 4,806-6,224 sqft
半独立田字型厂房
40’X 75′
建筑面积 4,000 sqft
新兴创新商业枢纽
为卓越的业务扩展提供战略位置
IDEAL BUSINESS HUB 坐落在槟城柏淡这个繁华且充满活⼒的城,地理位置优越 。靠近主要交通⽹络,贯通各⼤⾼速公路 、槟城港⼝及槟城国际机场,提供⽆与伦⽐的国内与国际市场连接。
这⾥是⼯业革命的核⼼位置,是仓库与物流的理想终极之选,为您的企业发展开创⽆限可能。
周边主要设施距离
5 KM
柏淡收费站
20 KM
双溪大年
23 KM
槟城码头与北海北岸货柜码头
40 KM
峇都加湾
42 KM
槟城国际机场
| BUILDING SPECIFICATIONS | ||
|---|---|---|
| Structure | a)Production/ Warehouse Area | : Steal structure |
| b)Office Area | : RC framework | |
| Wall | a)Production Area | : Cement sand brick/Metal cladding |
| b)Office Area | : Cement sand Brick/Fire rated brick | |
| Roofing | a)Metal deck roofing with insulation | |
| b)Klip-lok / roller shutter awning | ||
| Ceiling | a)Production/Warehouse Area | : Exposed |
| b)Office Area | : Suspended ceiling | |
| Flooring | a)Production/Warehouse Area | : Power float with floor hardener |
| b)Office Area | : Cement render | |
| Wall Finishing | a)Production/Warehouse Area | : 3m brick/ Metal wall cladding |
| b)Office Area | : Cement plaster with emulsion paint/ACP wall cladding | |
| Ramp | a)Production/Warehouse Area | : Concrete ramp with a gradient of 1:12 max & 50 0mm handrail gal. at 1000mm high |
| b)Office Area | : Concrete ramp with a gradient of 1:8 max | |
| Electrical Supply | a)Bungalow | : 300 amp 3 phase |
| b)Semi-D | : 200 amp 3 phase | |
| C)Cluster | : 200 amp 3 phase | |
| Floor Loading | a)Ground Floor | : 1.5ton/m2 |
| b)1st Floor | : 0.25ton/m2 | |
